Zand Profile
  • Contact us
  • About us
  • Projects
    • Duplex and townhouses
    • NDIS Projects
    • Education Projects
    • Commercial and fit out project
    • Interior Design
    • Housing
    • Multi-residential
Zand Profile
Menu
Home » ProjectPage 2
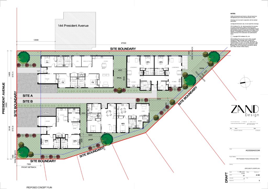
A detailed ground floor concept plan for the property, labeled "A-102." The site is divided into two sections, Site A and Site B, separated by a long central driveway. The plan shows the layouts of several buildings containing rooms labeled "HPS" and "OOA," likely for specialized housing. The site is surrounded by a triangular red boundary line with detailed setbacks, green tree icons, and landscaped garden beds throughout. The ZAND Design logo and project details are visible in the right-hand footer.
View Large
  • NDIS Projects

148 President Avenue, Miranda NSW 2228

A wide-angle exterior view of a modern, multi-level luxury residence. The building features expansive floor-to-ceiling glass windows and flat roofs with glass balustrades. A prominent, light-colored sandstone block retaining wall runs along the front of the property, topped with a manicured green hedge. In the foreground, there is a paved sidewalk, a strip of green grass, and an asphalt road. A driveway on the right leads to a dark-gated underground garage.
View Large
  • Duplex & Townhouses
  • Interior Design

8 Parriwi Road, Mosman NSW 2088

Contemporary multi-residential architectural rendering featuring a mix of textures: light-colored brickwork, natural wood slat accents, and black standing seam metal cladding. The structure includes glass-railed balconies and an integrated subterranean garage.
View Large
  • Duplex & Townhouses
  • Interior Design

375 Pacific Highway, Lindfield NSW 2070

The symmetrical brick facade of a luxury duplex at 8 Kinross Place, Revesby NSW 2212, showcasing architectural design and landscaping by Zand Design.
View Large
  • Duplex & Townhouses
  • Interior Design

8 Kinross Place, Revesby NSW

View Large
  • Housing
  • Interior Design

18 Quebec Avenue, Killara

A woman sits on a modular white sofa next to a calico cat in a luxury living room. The background features a linear fireplace and a marble-clad wall, with the text "44 Hayle street" and project details in the corner.
View Large
  • Interior Design

44 Hayle Street

Load more projects
Loading...

Zand design studio

We are an architectural team based in Sydney, Australia, with extensive experience in design architecture across numerous building types, including housing, multi-residential buildings, and commercial projects.

GET IN TOUCH

  • +61 414 908 833
  • info@zanddesignstudio.com.au
  • Suite 802/97, Pacific Hwy, North Sydney NSW 2060
Instagram Linkedin Facebook
  • Contact us
  • About us
  • Projects
    • Duplex and townhouses
    • NDIS Projects
    • Education Projects
    • Commercial and fit out project
    • Interior Design
    • Housing
    • Multi-residential